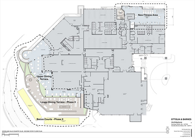
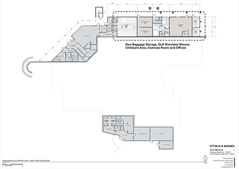
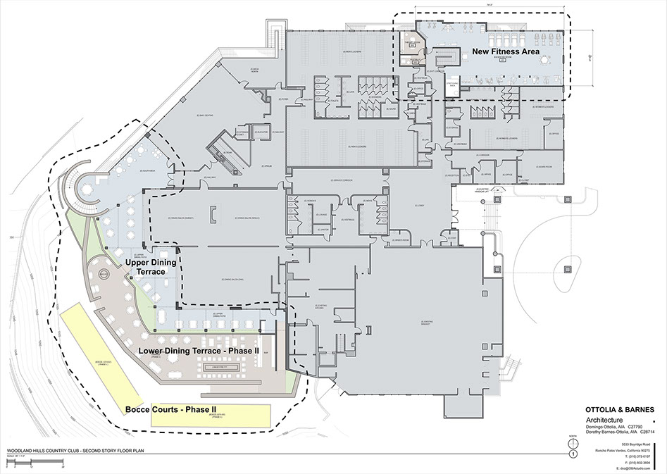
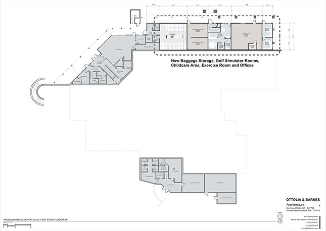
Woodland Hills Country Club

Woodland Hills, CA

 

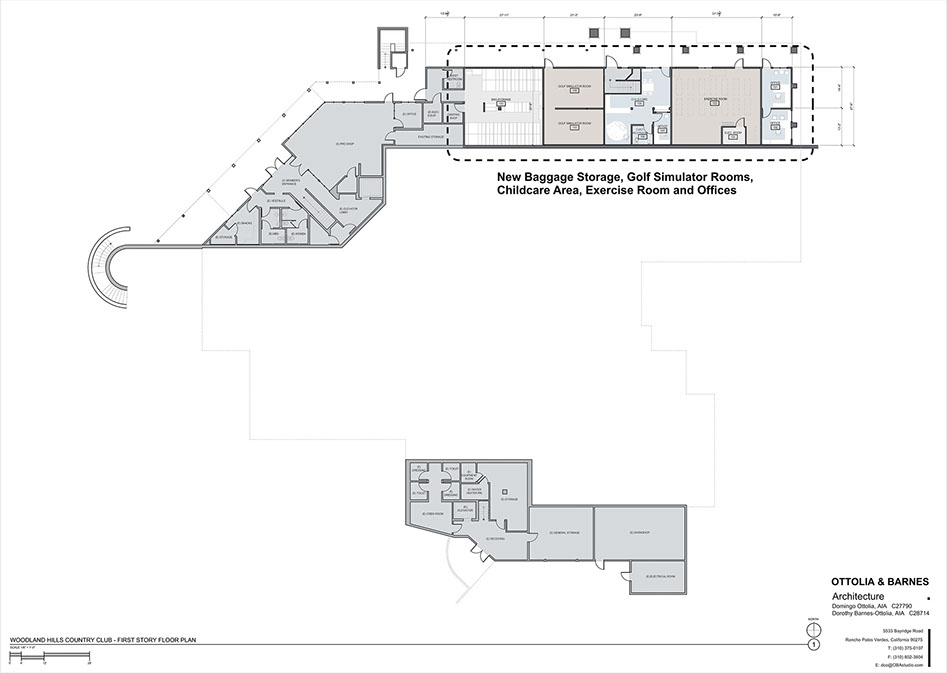
Scope of work:  Phase I - Therapy Room, Offices, Exercise/Weight Room, Group Exercise Room, Childcare Space, Baggage Storage, Gold Simulator Hitting Bays, Outdoor Dining and Bar, Pool and Cafe.

Copyright © 2019 Ottolia & Barnes Architecture. All rights reserved.