Copyright © 2019 Ottolia & Barnes Architecture. All rights reserved.

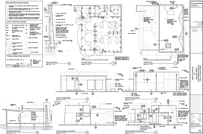
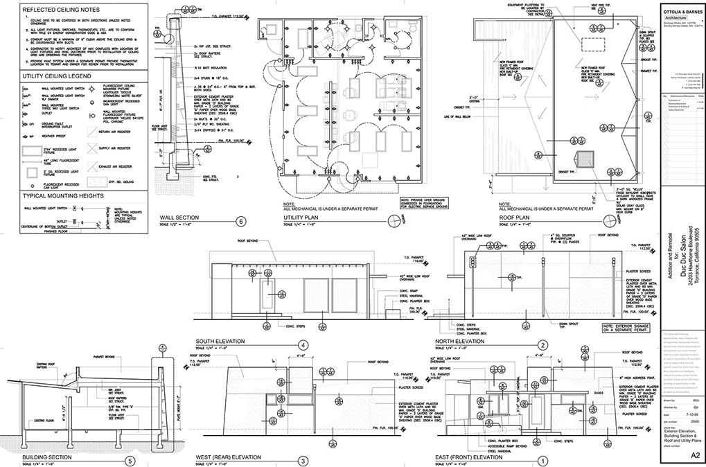
Duc Duc Hair Salon

Torrance, CA

 

Scope of work: Addition and remodel of 1,000 square feet. Exterior and interior remodel, landscape and hardscape design.